Wirral Mount
More is not always better when it comes to space, at HUMAN we aim to design quality, multi function spaces that will stand the test of time.
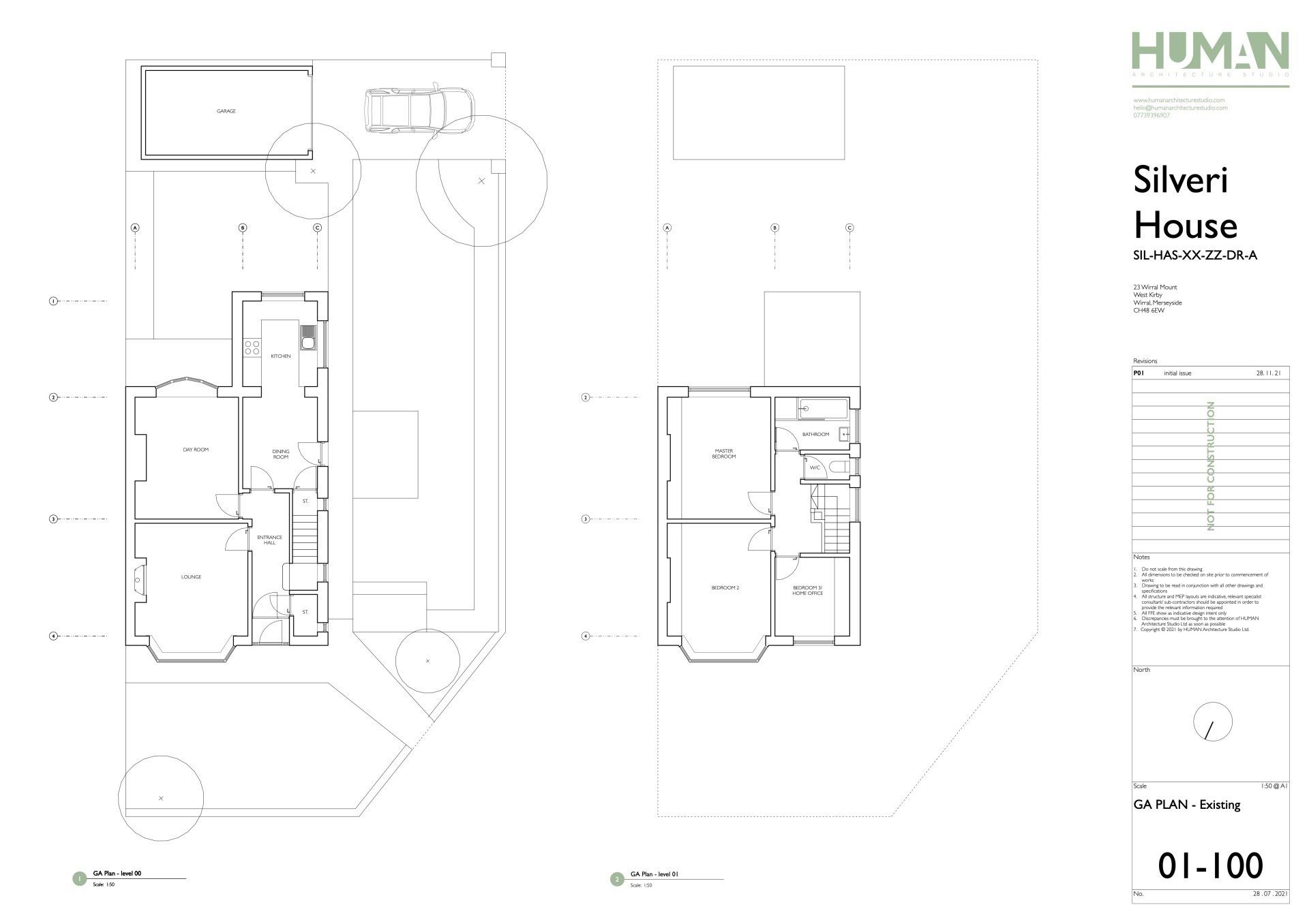
In order to do this Ashley held several design workshops with the client, talking through ideas and sketching design options. In this case, the result of our workshops was a design that kept within the footprint of the existing house and utilised every inch of space available.
At Wirral Mount we have developed a warm, tactile, spacious home that combines modern, simple design with the age and character of the existing house. Spaces are now seamlessly connected and access to the garden is joy at all times of the day.
HUMAN understand the importance of getting it right and take the time to develop designs that are tailored to you.




